





Ces rénovations se sont déroulées en milieu occupé, aux étages élevés d’un immeuble sans ascenseur. L’intervention a nécessité d’importantes reprises structurelles sur des planchers fortement dégradés, condition préalable à toute requalification des espaces.
Le projet s’est appuyé sur une logique de réemploi dès que l’état des matériaux le permettait : parquet existant déposé puis recomposé en pointe de Hongrie dans les pièces principales, conservation des menuiseries conformes aux exigences d’usage, valorisation des éléments d’origine.
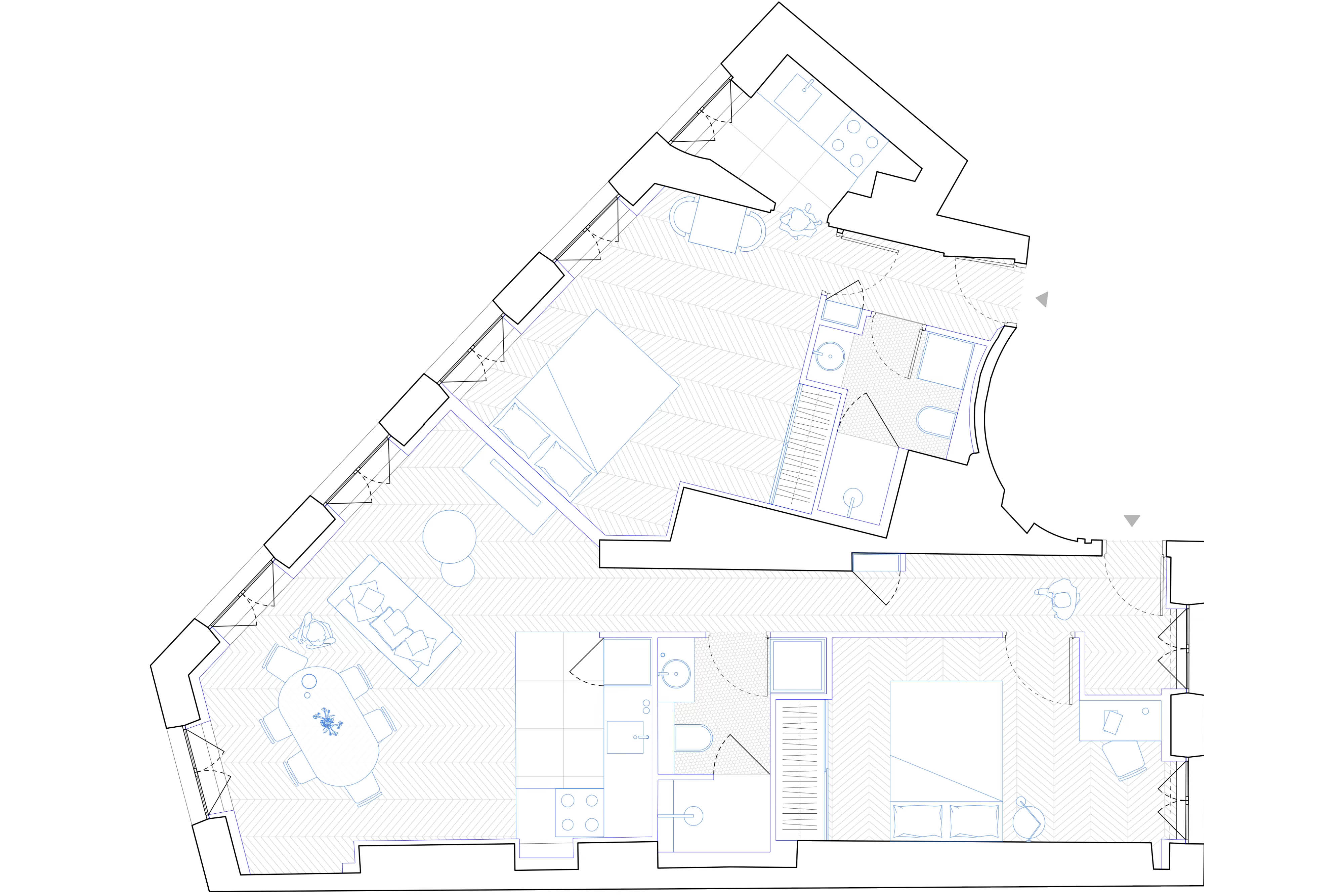
L’un des appartements a nécessité la création complète de sanitaires, impliquant l’intervention sur les évacuations des parties communes afin d’installer des toilettes jusque-là inexistants.
La redistribution intérieure vise à améliorer la lumière naturelle et la qualité des volumes. Plusieurs cloisons ont été déposées afin de clarifier la circulation et d’obtenir des pièces aux proportions plus justes. Les chambres ont été déplacées côté cour pour garantir le calme, tandis que les salles d’eau ont été dimensionnées selon chaque typologie.
Une véritable séquence d’entrée a été systématiquement dessinée, intégrant rangements et, lorsque la technique le permettait, de petits espaces buanderie. Chaque logement bénéficie désormais de capacités de rangement adaptées à sa surface.
MOA: RIVP
Groupement:
Architecte mandataire: Studio 1836
BET structure: Atelier C+M